Development site for 4no. attached dwellings
- £550,000
Development site for 4no. attached dwellings
- £550,000
Overview
- Residential Development Site
- 20621
Description of Land
Key features
- DDC Planning Ref: 22/00471
- Erection of 4no. Dwellings
- Planning Permission Granted
- Enquire for More Information
Description
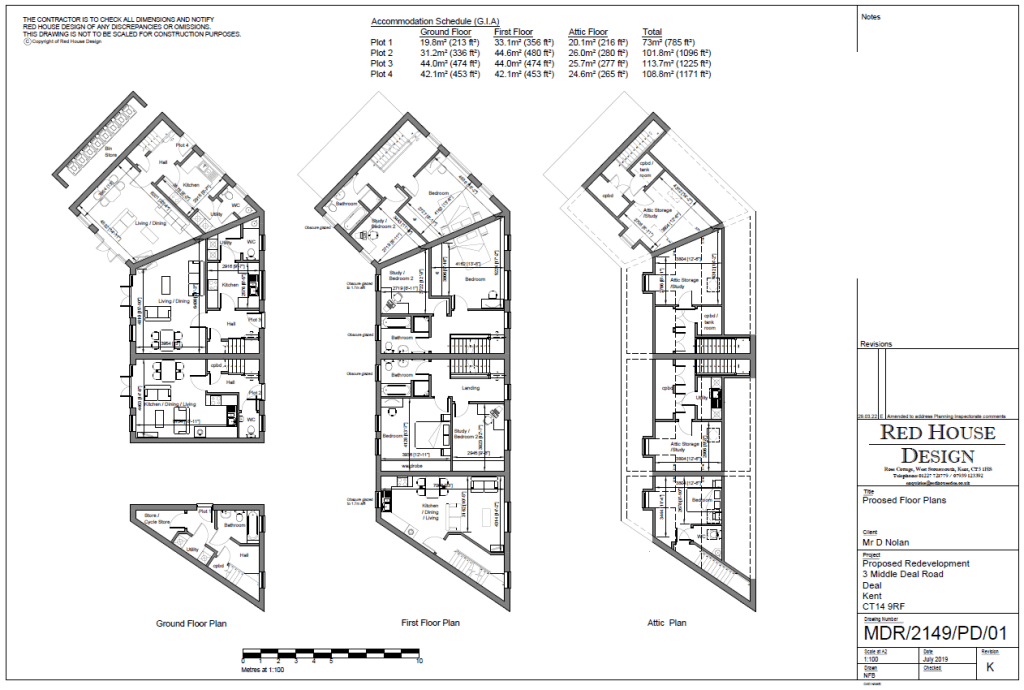
Planning permission granted for erection of 4no. attached dwellings with under croft parking and bin stores (existing buildings to be demolished).
Details
Updated on February 7, 2026 at 1:46 pm-
Property ID 20621
-
Price £550,000
-
Property Type Residential Development Site
-
Property Status FOR SALE
Address
Open on Google Maps-
Address: Middle Deal Road, Upper Deal, Deal, Dover, Kent, England, CT14 9TU, United Kingdom
-
County: Kent
-
Postal Code: CT14 9TU
-
Country: England
Contact Information
View ListingsSimilar Listings
Development site , Tolleshunt D’Arcy, Essex
Tollesbury Road, Tolleshunt D'Arcy, Maldon, Essex, England, CM9 8UA, United Kingdom DetailsDevelopment site with full planning permission for 120 new homes
Barwick Road, Elms Vale, Dover, River, Dover, Kent, England, CT17 0LH, United Kingdom DetailsDevelopment site ; Two New Build Semi Detached Houses
Julian Road, Lynwood, Folkestone, Folkestone and Hythe District, Kent, England, CT19 5UQ, United Kingdom DetailsDevelopment opportunity for 9 dwellings, Tiverton.
West Exe, Tiverton, Mid Devon, Devon, Devon and Torbay, England, EX16 5HY, United Kingdom Details
- Thomas & Partners


